EL Kitchens, 1069, High Road EL Kitchens, 1069, High Road

High Road, Romford, RM6

0 bedroom Shop to rent

£18,000 PCM

Key Features

  • Approx 785 Sq Ft
  • Prominent Location
  • Customer Allocated Parking
  • Available Now

Description

A well-presented ground floor retail unit, ideally situated in a prominent and busy location with excellent footfall and passing trade. The premises benefit from a large shopfront, good ceiling height, and an open-plan retail area suitable for a variety of uses (subject to necessary consents).- References and deposit required.

Use: Suitable for retail, showroom, office, or similar uses (STP).

Business Rates: Interested parties are advised to make their own enquiries with the local authority, (LONDON BOROUGH OF REDBRIDGE).

Legal Costs: Each party to bear their own legal costs.


Location


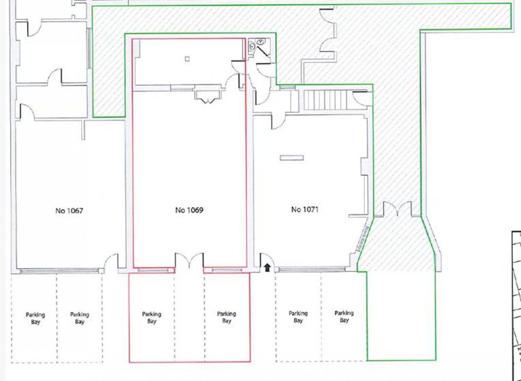
Floorplan

Floorplan

EPC

EPC for EL Kitchens, 1069, High Road

harris & company

106 Chamberlayne Road,
Kensal Rise,
London,
NW10 3JN